Tag: 抽水蓄能
-
电池储能这么火,抽水蓄能表示不服
-
电力系统与抽水蓄能
-
华电集团首座抽水蓄能电站下水库成功截流
-
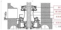
【涨知识】抽水蓄能电站主轴密封
-
成都院再添3项发明专利与3项实用新型专利
-
三峡集团与安德里茨签署备忘录 在变速抽水蓄能机组技术等领域深化合作
-
抽水蓄能水电站有何特点?天然库盆暗藏玄机 中国又掌握一核心技术
-
河北秦皇岛市抚宁区抽水蓄能电站项目开工
-
安徽省抽水蓄能选点规划调整报告通过审查
-
【涨知识】混流式水泵水轮机结构形式
-
周见|涉2805MW火电项目、700MW风电项目 18个项目详情请猛戳!
-
厄瓜多尔美纳斯水电站引水隧洞充水
-
到2020年我国抽水蓄能电站运行总容量将达4000万千瓦
-
总投资1361亿元!16个在建抽水蓄能电站项目简介
-
中国首个海岛绿色抽水蓄能电站2号机组并网发电
TOPS- 月排行/
- 阅读排行/
- 原创
- 月排行/
- 阅读排行/
- 原创
- 2,430
゜ 1云南电力交易系统统一登录 昆明电力交易中心网址 昆明电力交易中心官网 - 808
゜ 2广东电力交易系统网址/广东电力交易中心网站 - 799
゜ 3江苏省电力交易平台网址江苏省电力交易中心网址 - 794
゜ 4国网湖北电力李生权个人简历? - 657
゜ 5安徽省电力交易中心官网 安徽省电力交易中心网站网址 - 496
゜ 6中国南方电网 阳光电子商务平台 - 474
゜ 7新疆电力交易中心网站 - 420
゜ 8广西电力市场交易中心网址 - 418
゜ 9广东电力交易中心网址 广东电力交易中心的官网 广东电力市场交易系统 - 411
゜ 10福建售电公司网上注册操作手册

